2-эт. дом (160 м²) на 9 сотках

Обзор
Стоимость
19 999 999
Комнат в доме5
Статус землиИЖС
Тип комнатраздельные
Право собственностиСобственник
Тип парковкиЗа шлагбаумом во дворе
Категория земли AvitoДачное некоммерческое партнёрство (ДНП)
Способ связи avitoПо телефону и в сообщениях
Материал стен (Авито дома)Брус
Тип отопления cianЭлектрическое
Тип дома cianКлееный брус
Тип строенияДом
Площадь, кв.м.160
Площадь участка, сот9
Этажность2
Материал стен Брус
ОтоплениеЭлектрическое
Адрес
Населенный пунктСаморядово Деревня
ШоссеДмитровское шоссе
Улицаулица Счастливая
В избранное 2-эт. дом (160 м²) на 9 сотках

Продается прекрасный дом с евроремонтом в живописном месте Подмосковья!

2 – этажный дом площадью 160 кв.м.  с 4 -мя  изолированными комнатами на участке 9 соток правильной прямоугольной формы.

Дом на монолитном фундаменте, сделан из бруса,  хорошо утеплен, зимой будет всегда тепло , летом - будете насладитесь живительной прохладой.

Крыша металлочерепица с качественными снегозадержителями.

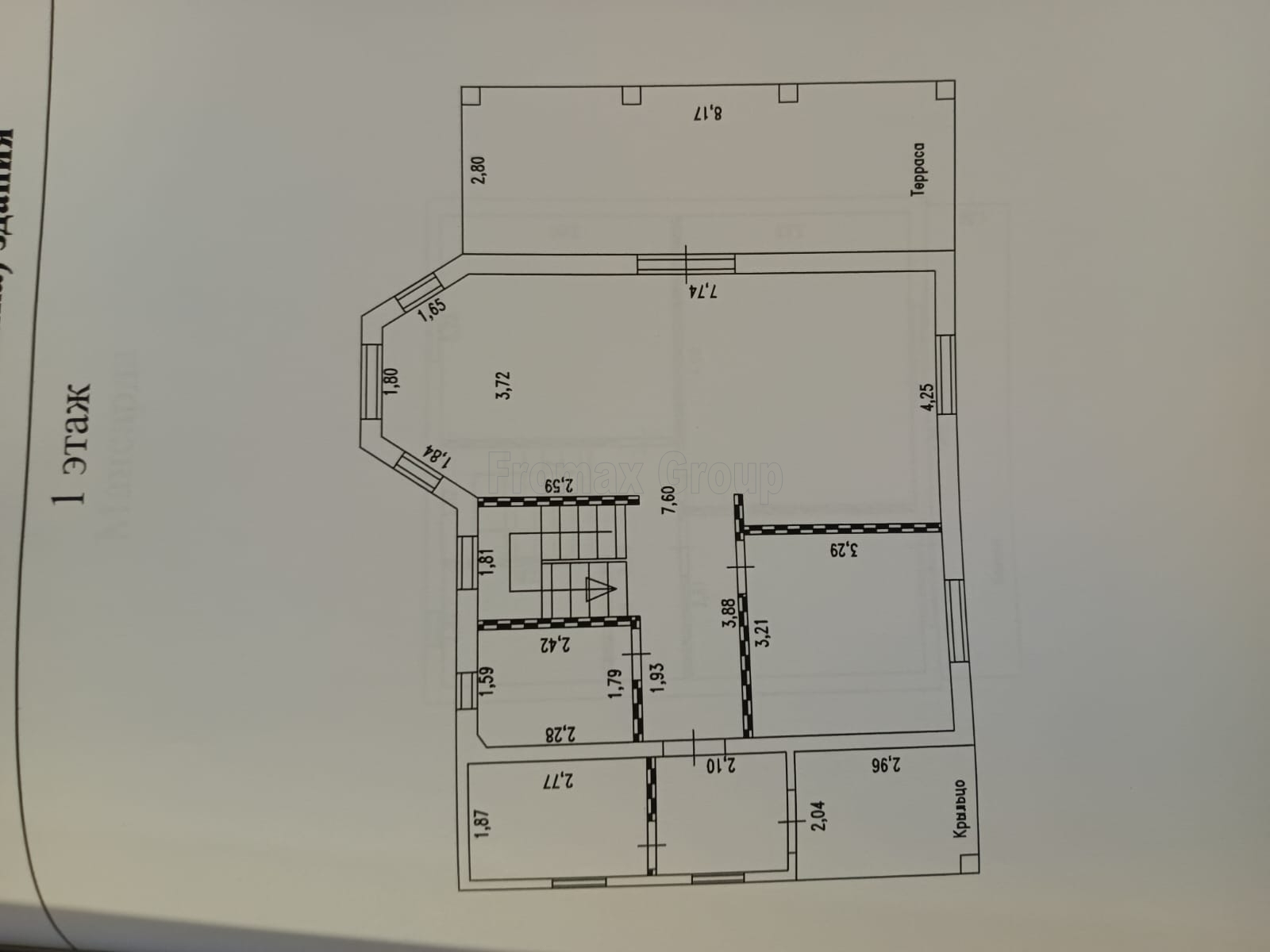
1 этаж: большая и просторная гостиная с панорамными окнами, совмещенная с кухонной зоной (34 кв.м), кухня сделана из качественных материалов со всей необходимой техникой (в т.ч. установлены фильтры питьевой воды), уютная комната (11 кв.), санузел с душевой кабиной (4,3 кв.м), техническая зона и кладовая (5,2 кв.м), коридор (4,3 кв.м), крыльцо правильной формы (6 кв.м), большая терраса с видом на сад и лаундж зоной (23 кв.м),  дополнительное место хранения прямо под лестницей (2 кв.м), высота потолков 3,72 м.

2 этаж:  1- комната (14.2 кв.м) с большим окном, 2-комната ( 18.8 кв.м ) с выходом на балкон, 3-я комната (10 кв.м) с выходом на балкон, санузел (4,9 кв.м), шикарный большой балкон (10.7 кв.м) с видом на р. Саморядовка, зона хранения (1,2 кв.м), высота потолков 3,78 м.

Свободный доступ на чердак дает возможность дополнительного места для хранения.

Мебель и бытовая техника остается частично, но больная ее часть.

Коммуникации: свет 15 кВт, септик, скважина, электрический котел отопления, интернет, ТВ антенна

Территория: 9 соток правильной прямоугольной формы, вдоль всего участка была проведена ливневая канализация, что гарантирует сухость и влагоустойчивость. Земля – чернозем, что позволят разбить мини сад и зону отдыха прямо около дома. На участке высажены садово - плодовые деревья (5 лет), так что ждите в ближайшее время урожай. Обустроена мангальная зона отдыха.

Дополнительные постройки: гараж для мотоцикла – полностью обустроен, возможно, переоборудование в рабочий кабинет для «домашнего мастера», дровница .

Парковочное место (асфальт) на 2-3 машины.

Ворота металлические с автоматическим открыванием.

Возможна прописка. Возможна ипотека. Все документы готовы, быстрый выход на сделку.

Остались вопросы? Звоните.

Расположение

Важно! На карте не всегда указано точное местоположение. Более точную информацию можно узнать у менеджера, разместившего объект
ЗА
ЧЕСТНЫЙ БИЗНЕС