Дом 125 кв.м на 7 с. КП Классик

Обзор
Стоимость
17 070 585
Комнат в доме3
Статус землиИЖС
Тип комнатраздельные
Право собственностиПосредник
Тип парковкиПарковочное место
Категория земли AvitoЛичное подсобное хозяйство (ЛПХ)
Способ связи avitoПо телефону и в сообщениях
Тип строенияКоттедж
Площадь, кв.м.125.4
Площадь участка, сот7.15
Этажность1
Материал стенблочный
Отоплениецентральное газовое
Адрес
Населенный пункткоттеджный посёлок Классик
ШоссеЯрославское шоссе
Улицаулица К. Паустовского
В избранное Дом 125 кв.м на 7 с. КП Классик

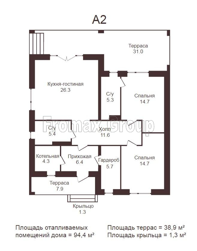
Объект - #3228. Продаётся коттедж площадью 125,4 (включая две террасы 7.9 и 31 кв.м) кв.м. на участке площадью 7,15 соток.в КП Классик, расположенном в черте населенного пункта Братовщина Пушкинского района. Центральные коммуникации, магистральное газоснабжение, свет 15 кВт. Сельские тарифы. Благоустроенная охраняемая территория, въезд через КПП, видеонаблюдение, ландшафтный дизайн. Развитая инфраструктура : школа и детский сад 10 минут пешком. Отличная транспортная доступность, удобная дорога. На территории коттеджного поселка планируется ФОК, сетевой продуктовый магазин, кофейня, банный комплекс, детский центр развития. Льготная ипотека всех видов, от 3,3%. Нюансы сделки уточняйте по телефону.  Звоните! 

Расположение

Важно! На карте не всегда указано точное местоположение. Более точную информацию можно узнать у менеджера, разместившего объект
ЗА
ЧЕСТНЫЙ БИЗНЕС